B1大広間、多目的ホール、1Fレストラン《コケモモ》、2F会議室などは、学習室や会議など多目的にご利用いただけます。必要に応じて、放送機器、黒板、机、イス、ビデオなどの設備、備品をご用意できます。
大広間(コンベンションホール)
●広さ170帖、約234m (10.7m×21.9m)、畳または絨毯敷。
●2~5分割に間仕切りできます。
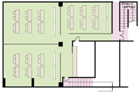
レストラン(こけもも)
●広さ約100m (10.3m×9.8m)。
●イス・テーブルセット120席。2分割に間仕切りできます。
多目的ルーム(4F)
●広さ60.3m (12.3m×4.9m)、絨毯敷。
●2分割に間仕切りできます。
多目的ルーム(B1)
●広さ約31m (5.6m×5.6m)。
スキーロッカールーム
●3分割に間仕切りできます。
学習室の一例
設備/備品は一例。用途に合わせたセッティングが可能です。



